Características
Pensada para quem busca conforto e praticidade em um espaço compacto, a Rifugio 1 entrega tudo o que é essencial — sem excessos, mas com muito charme.
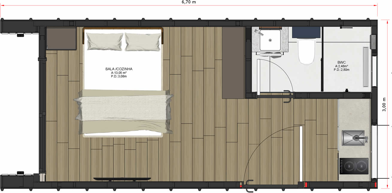
Com 20 m² bem distribuídos, ela conta com:
- Ambiente integrado com minicozinha funcional (espaço para frigobar e cooktop de 2 bocas);
- Banheiro moderno com box, nicho para shampoo e acabamento elegante;
- Fachada de vidro que amplia a iluminação natural e conecta interior e exterior;
- Opção de deck, criando uma área externa aconchegante e ideal para relaxar;
- Dimensões: 3,00 x 6,70 m (20 m²);
- Composição: Quarto, sala e cozinha integrados | 1 banheiro.


Transforme seu sonho em realidade com a Atualle Modular, nossa solução rápida, acessível e de alta qualidade. Estamos prontos para ajudar a criar o refúgio perfeito para você.
Conheça nossos Pacotes
PACOTE BASIC

Você recebe sua casa em Light Steel Frame com isolamento, vedações internas e externas, telha, revestimentos e acabamentos de parede/forro, revestimento de piso interno vinílico e porcelanato na área do box, esquadrias, instalações elétricas e hidrossanitários, iluminação em geral, infra para ar condicionado e montagem.
* Não estão inclusos equipamentos, itens decorativos, eletrodomésticos e móveis soltos.
PACOTE PLUS

Você acrescenta ao pacote Basic os seguintes itens: box em vidro temperado, vaso sanitário caixa acoplada, louças e metais, bancadas em granito para cozinha e banheiro, marcenaria completa com iluminção embutida conforme o projeto.
* Não estão inclusos equipamentos, itens decorativos, eletrodomésticos e móveis soltos.
Opcionais para a Casa Rifugio 1
AUTOMAÇÃO
Automação com comando de voz, incluindo iluminação, acionamento do ar condicionado e fechadura eletrônica.
LAREIRA
Lareira à álcool, incluindo acabamento em pedra, salamandra ou suspensa, conforme projeto.
LAJE EM LSF
Laje em Light Steel Frame para substituir radier.
Opções de Acabamentos
Revestimento de Paredes Internas – MDF
Revestimento de Paredes Banheiro – Placa Flexível
Tipos de Pisos


Vamos Começar o Seu Projeto?
O que você Recebe
MANUAL

Entregamos o manual com todas as informações referentes ao uso da casa
CASA COMPLETA

Entregamos sua Casa Completa com estrutura em ligth steel frame
VEDAÇÕES

Vedações com materiais resistentes, e que em conjunto com o preenchimento das paredes em lã de pet/vidro, garantem excelente isolamento térmico e acústico
INSTALAÇÕES

Instalações elétricas e hidrosanitárias completas, aguardando apenas o recebimento da infra de espera
ESQUADRIAS

Esquadrias em alumínio
ILUMINAÇÃO

Iluminação planejada, funcional e agradável
ACABAMENTOS

Acabamentos de qualidade no piso, parede e teto, internos e externos
O que você precisa Fazer?
REGISTRO E APROVAÇÃO DA CONSTRUÇÃO

Certifique-se de que o terreno esteja registrado e aprovado para a construção
LIGAÇÃO DE ENERGIA

Garanta que haja infraestrutura para entrada de energia elétrica
INSTALAÇÃO DE SISTEMA DE ÁGUA

Providencie a instalação do sistema de água previamente
INSTALAÇÃO DE SISTEMA DE ESGOTO

Providencie a instalação do sistema de esgoto previamente
FUNDAÇÃO RASA

Contrate um empreiteiro para realizar a fundação, conforme orientação que daremos
Nossos Diferenciais

CONSTRUÇÃO EM LIGHT STEEL FRAME

AGILIDADE NA EXECUÇÃO

ILUMINAÇÃO PENSADA PARA GERAR CONFORTO VISUAL

ACABAMENTOS DE QUALIDADE

CONFORTO ACÚSTICO

CONFORTO TÉRMICO

CONFIABILIDADE NO ORÇAMENTO FINAL












